Nachhaltig bauen

Linea by Genböck Haus – gscheit bauen. Nachhaltig wohnen.

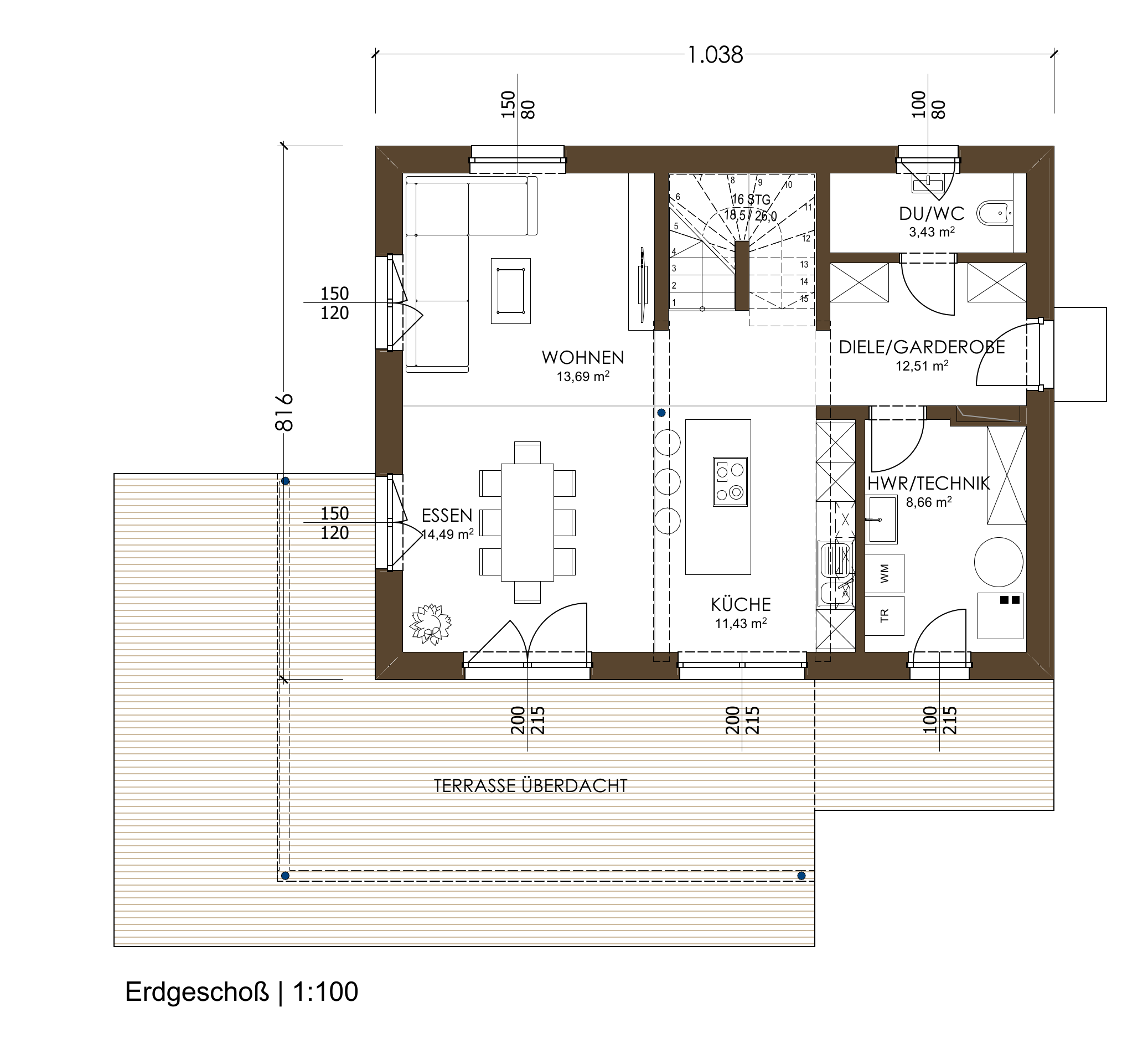
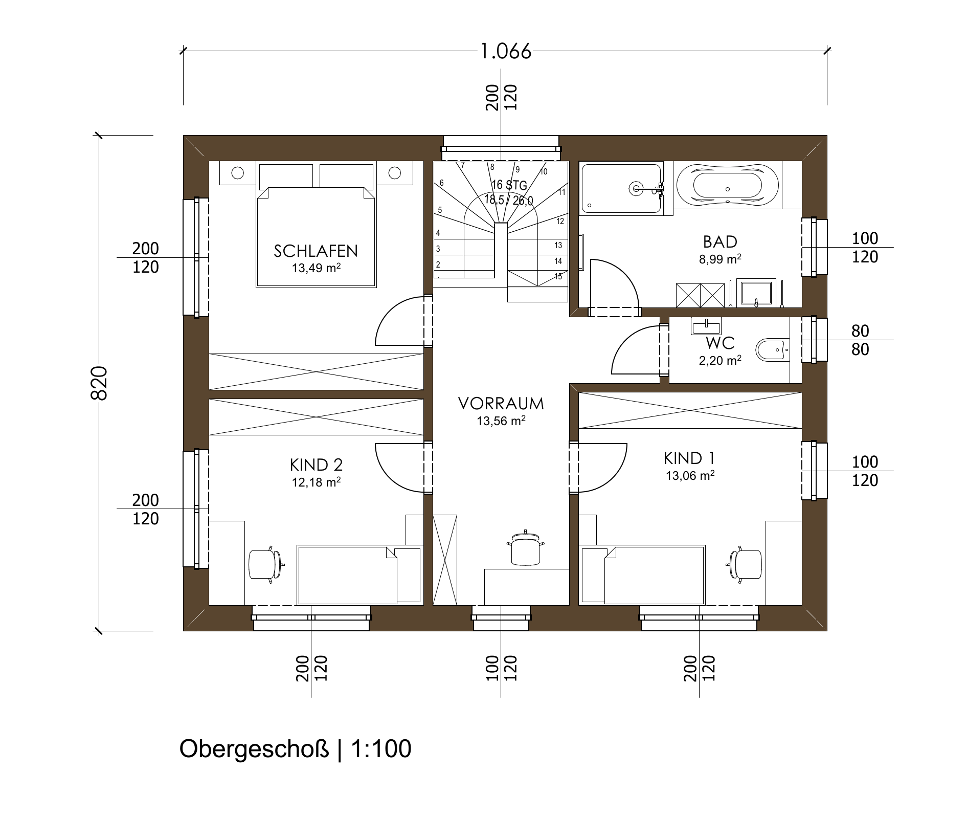
Bewährte Grundrisse. Fixpreisgarantie. Unsere Aktionshäuser stehen für Qualität aus über 35 Jahren Holzbau-Erfahrung – für alle, die leistbar wohnen wollen, ohne Kompromisse bei Stil und Substanz.

unveränderbar gut,
unverwechselbar Genböck
  • Transparente Fixpreise
  • Hochwertiger Holzbau mit der climateSkin Wand
  • Bewährte Grundrisse aus der Praxis
  • Nachhaltigkeit
  • Handschlagqualität

Weil man Gutes nicht neu erfinden muss.

 

Es gibt Dinge, die kann man einfach nicht besser machen.
Wenn Erfahrung, durchdachte Planung und handwerkliches Know-how zusammenkommen, entstehen Häuser, die sich in der Praxis bewähren – Tag für Tag.
Genau das sind unsere Linea Häuser: zehn erprobte Modelle, die hohe Wirtschaftlichkeit mit der bewährten Genböck Haus Qualität verbinden.

Leistbares Wohnen – unverwechselbar Genböck.

Idee hinter Linea

Leistbar bauen. Gscheit wohnen.

Mit Linea by Genböck Haus bieten wir Ihnen bewährte Grundrisse, die sich in der Praxis vielfach bewährt haben – perfekt für alle, die Wert auf österreichische Qualität, klare Planung und faire Preise legen. Entdecken Sie auch unsere Aktionshäuser: ausgewählte Modelle mit besonders attraktivem Preis-Leistungs-Verhältnis.

Alle Modelle sind flexibel anpassbar – und dank Fixpreisgarantie bleibt Ihr Budget verlässlich planbar.

✅ Bewährte Grundrisse aus der Praxis
✅ Transparente Fixpreise
✅ Hochwertiger Holzbau mit der patentierten climateSkin Wand
✅ Anpassbar an Ihre Wünsche
✅ Regional produziert – nachhaltig gebaut

Unsere Hausideen für jedes Budget.

Vom kompakten Bungalow bis zum großzügigen Familienhaus – jedes Linea-Modell steht für funktionales Design, hohe Energieeffizienz und die gewohnte Genböck Haus Qualität.
Wählen Sie das Haus, das zu Ihnen passt – und vertrauen Sie dank dem Fixpreisangebot auf Planungssicherheit und Kostentransparenz von Anfang an.

Genial 126W

Kompakt und durchdacht: Der Genial 126W bietet ein offenes Wohnkonzept mit klarem Raumfluss — ideal für Familien. Bewährte Grundrisslösungen sorgen für hohe Alltagstauglichkeit und niedrige Betriebskosten. Dieses Modell lässt sich auf Wunsch einfach an Ihre Bedürfnisse anpassen.

  • Wohnfläche: 126m2
  • Dachform: Walmdach
  • Schlafzimmer: 3
  • Preis: Ausbauhaus ab 234.320,00€

KlimaGEN 129 W

Das KlimaGEN 129W nutzt schlanke Grundstücke optimal: viel Tageslicht durch Südausrichtung und flexible Raumzonen. Die Planung legt Wert auf Komfort und Funktionalität — ideal für Familien mit Anspruch an Energieeffizienz. Anpassungen sind jederzeit möglich, bei klarer Fixpreis-Planung.

  • Wohnfläche: 129m2
  • Dachform: Walmdach
  • Schlafzimmer: 3
  • Preis: Ausbauhaus ab 242.370,00€

Be Free smart 130F

Das Be Free smart vereint Wohnen und Arbeiten: ein großzügiger Home-Office-Bereich macht flexibles Arbeiten von zu Hause leicht. Offene Räume schaffen ein modernes Wohngefühl, die kompakte Bauweise hält die Kosten im Griff. Ideal für Paare oder Familien mit Arbeitsbedarf zu Hause.

  • Wohnfläche: 130m2
  • Dachform: Flachdach
  • Schlafzimmer: 3
  • Preis: Ausbauhaus ab 249.620,00€

Bungalow 101W

Schlank im Grundriss, clever im Innenraum: Der Bungalow 101W bietet barrierearmen Wohnkomfort auf einer Ebene. Trotz kleiner Fläche bieten durchdachte Stauraum- und Raumteilungslösungen viel Wohnqualität. Perfekt für Paare oder späteres altersgerechtes Wohnen.

  • Wohnfläche: 100m2
  • Dachform: Walmdach
  • Schlafzimmer: 2
  • Preis: Ausbauhaus ab 190.240,00€

SolarGen 156F

Der SolarGen 156F ist offen und familienfreundlich: große Zimmer, viel Licht und Raum für Rückzugsbereiche. Das Modell ist optimal für Baufamilien, die Wert auf Wohnkomfort und Energieeffizienz legen — PV- und Speicheroptionen machen es zukunftssicher. Die klare Struktur lässt individuelle Anpassungen zu.

  • Wohnfläche: 156m2
  • Dachform: Flachdach
  • Schlafzimmer: 3
  • Preis: Ausbauhaus ab 296.360,00€

Bungalow 119W

Dieser Bungalow kombiniert überdachte Freiräume mit familiengerechter Raumplanung: eigenes Kinderbad und flexible Wohnzimmerlösung sind Highlights. Die Möglichkeit, mit oder ohne Keller zu planen, macht das Modell vielseitig und wirtschaftlich. Ideal, wenn Komfort auf einer Ebene gewünscht ist.

  • Wohnfläche: 119m2
  • Dachform: Walmdach
  • Schlafzimmer: 3
  • Preis: Ausbauhaus ab 227.000,00€

KlimaGen 159W

Das KlimaGEN 159W bietet großzügige, helle Räume und ist eine bewährte Lösung für Familien mit Platzanspruch. Erleben Sie die Raumwirkung gern in unserem Musterhaus in Haag — Planung und Ausführung folgen prüfbaren Genböck-Standards. Das Modell eignet sich besonders für Bauherren, die Wert auf Raumqualität und Wohnkomfort legen.

  • Wohnfläche: 159m2
  • Dachform: Walmdach
  • Schlafzimmer: 3
  • Preis: Ausbauhaus ab 271.670,00€

Unveränderbar gut – unverwechselbar Genböck.

Jedes Linea Haus ist ein echtes Genböck Haus – mit allen Qualitätsmerkmalen, die uns seit Jahrzehnten auszeichnen:

climateSkin Wandaufbau für exzellenten Schall- und Wärmeschutz

✅ Markenfenster & Türen von österreichischen Qualitätsherstellern

✅ Energieeffiziente Haustechnik von erfahrenen Partnerbetrieben

✅ Nachhaltige Materialien aus regionaler Produktion

✅ Fixpreisgarantie für volle Budgetkontrolle

Häufige Fragen

Häufige Fragen zu Linea by Genböck Haus

Ihre Fragen – unsere Antworten.

  • Was bedeutet „Fixpreis“?

Ein Fixpreis heißt: Sie wissen von Anfang an genau, was Ihr Bauvorhaben kostet – ohne versteckte Kosten oder Überraschungen. Unser Angebot ist transparent und detailliert: Alle Leistungen, Materialien und Schritte sind klar aufgelistet. Sie können jeden Punkt nachvollziehen und wissen jederzeit, wofür Sie bezahlen.

Vorteile für Sie auf einen Blick:

  • Sicherheit: Keine unklaren Zusatzkosten – alles ist von Anfang an vereinbart.
  • Kalkulierbarkeit: Sie planen Ihr Budget exakt und stressfrei.
  • Transparenz: Alle Leistungen klar definiert, verständlich und nachvollziehbar.
  • Planungssicherheit: Sie wissen von Anfang an, woran Sie sind – keine unangenehmen Überraschungen.

Mit einem Fixpreis können Sie Ihr Hausbau-Projekt entspannt, sicher und risikoarm starten – von der Planung bis zur Schlüsselübergabe.

  • Kann ich meinen Grundriss anpassen?

    Ja, jedes Modell kann individuell adaptiert werden.

  • Was unterscheidet Linea von anderen Genböck Häusern?

    In den Linea Modellen steckt Erfahrung aus mehr als 35 Jahren individuellem Fertighausbau. Wir haben unser Know-how gebündelt und daraus durchdachte, funktionale Hausmodelle entwickelt, die Qualität, Planungssicherheit und ein attraktives Preis-Leistungs-Verhältnis vereinen.

    Im Gegensatz dazu entstehen klassische Genböck Häuser vom weißen Blatt weg: individuell geplant, exakt auf die Wünsche und Anforderungen unserer Kundinnen und Kunden abgestimmt. Diese maßgeschneiderten Unikate zu entwerfen und umzusetzen ist unsere Leidenschaft und das, was uns seit über 35 Jahren antreibt.

  • Wie lange dauert die Umsetzung?

    Je nach Modell liegt die Bauzeit bei rund 6 Monaten ab Planfreigabe.

Jetzt die Linea Aktionshäuser entdecken.
Unsere Bauberater informieren Sie gerne über alle Details, Preise und Ausstattungsvarianten.
Vereinbaren Sie ein unverbindliches Beratungsgespräch – online oder direkt in einem unserer Musterhäuser in Haag, Haid, Eugendorf oder der Blauen Lagune.

Genböck Haus – gscheit bauen seit über 35 Jahren.


Ob individuell geplant oder bewährt realisiert – jedes Genböck Haus steht für höchste Holzbauqualität, Nachhaltigkeit und Handschlagqualität.
Mit Linea by Genböck Haus machen wir unser Wissen und unsere Erfahrung zugänglich für alle, die leistbar, nachhaltig und „gscheit“ wohnen wollen.

Sie wollen unsere Wohnkonzepte erleben?

Hier können Sie unsere Kataloge online ansehen oder kostenlos und unverbindlich anfordern.

Katalog
Kontakt